尼崎市南清水の物件詳細情報|尼崎賃貸マンション情報NET
Home
- 物件コメント
- 室内設備はエアコン・追い焚きなどが揃っているので、快適に過ごしやすいお部屋になります。造りとデザインに関して、自信をもって情報を提供できるマンションです。このマンションはバルコニー付きで、用途に合わせて活用できおすすめです。興味を持った方は是非お気軽にお問い合せ下さい。アパマン住宅の連絡先はこちらTEL;078-334-2960Mail;apaman-w@apaman-web.co.jpです。
メールでお問い合わせ
- 家賃/共益費
- 61,100円(-)
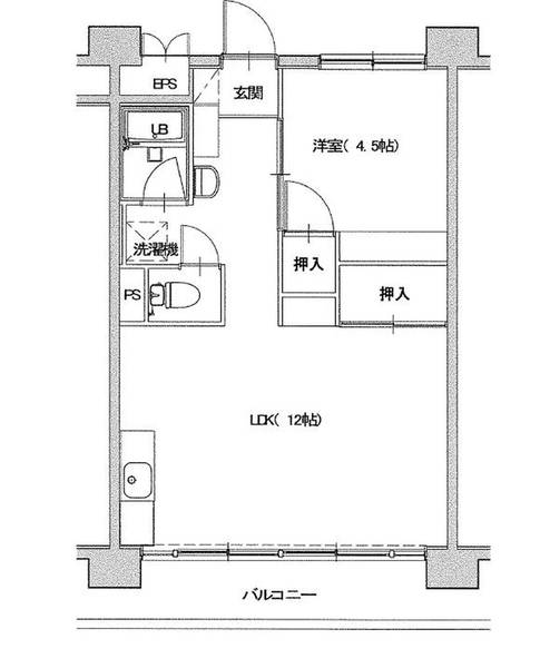
- 間取/専有面積
- 1LDK/39.8m2
- 築年月
- 1976年3月
- 所在地
- 尼崎市南清水36-1
- 交通
- ・JR福知山線猪名寺より徒歩15分
・JR福知山線塚口より徒歩22分
- 所在階
- 11階建/10階
- 敷金/礼金
- - / -
- 保証金/解約引
- - / -
- 契約一時金/償却費
- - / -
- 取引形態/入居時期
- / 即入居
- 駐車場/部屋の向き
- 9,900円/月 / 南西向き
- 建物種別/構造
- マンション / 鉄骨鉄筋コンクリート
- 設備・条件
- 二人入居可、給湯、追い焚き給湯、トイレ/風呂別、室内洗濯機置場、ウォッシュレット、エアコン、バルコニー、エレベータ
- その他費用
- コメント
- 室内設備はエアコン・追い焚きなどが揃っているので、快適に過ごしやすいお部屋になります。造りとデザインに関して、自信をもって情報を提供できるマンションです。このマンションはバルコニー付きで、用途に合わせて活用できおすすめです。興味を持った方は是非お気軽にお問い合せ下さい。アパマン住宅の連絡先はこちらTEL;078-334-2960Mail;apaman-w@apaman-web.co.jpです。
電話でお問い合わせ
- この物件のお問い合わせ先
- 物件番号:100961848130
ホームメイトFC三宮店
兵庫県知事(9)第9090号
兵庫県神戸市中央区三宮町1丁目8番1号 さんプラザ 112号室
078-334-2960
メールでお問い合わせ