- [尼崎 賃貸マンション情報NET] TOP
- 尼崎市
- 潮江
- 尼崎市潮江(JR東海道本線(近畿)尼崎駅)のマンション物件詳細
尼崎市の賃貸物件を検索
尼崎市潮江(JR東海道本線(近畿)尼崎駅)のマンション物件詳細
![]() |
![]() |
||||
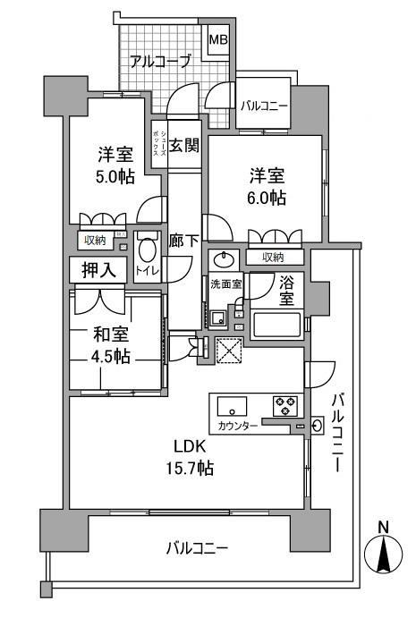
| その他の写真 | ![]() |
![]() |
![]() |
![]() |
※画像をクリックすると 拡大表示します。 |
|---|---|---|---|---|---|
![]() |
![]() |
![]() |
![]() |
||
| ホームメイトFC三宮店 TEL.078-334-2960 |
物件番号 | 100961852451 |
|---|---|---|
|













